2026/04/10
お知らせ
宇部市・ときわスクエア(常盤通りにぎわい交流拠点施設)出店募集説明会開催(5/29)のご案内
安成工務店では、宇部市が推進する中心市街地活性化事業「常盤通りにぎわい交流拠点利活用事業(ときわスクエア)」に、施工及び、事業運営パートナーの一員として参画しております。
・宇部市>常盤通りにぎわい交流拠点利活用事業(ときわスクエア)
https://www.city.ube.yamaguchi.jp/machizukuri/toshikeikaku/chuushinshigaichi/1005650/1014613/1020198/index.html
本施設は、公共機能と民間機能を融合させた複合施設として、人々の交流や滞在を生み出し、まちなかに新たなにぎわいを創出することを目的とした拠点で、2027年6月頃全面開業予定となっております。

当社はこれまで、地域に根差した住まいづくり・まちづくりに取り組んでまいりましたが、本事業においては「つくる」だけでなく、「まちが育っていく仕組み」にも関わっていくことになりました。
つきましては、来年6月の開業を目指して、本施設1階の民間施設(商業区画)における出店者募集に向けた説明会を下記の通り開催いたします。
飲食・物販・サービスなど、多様な業種の皆さまとともに、地域に愛され、日常的に人が集う場所を共につくっていきたいと考えております。
本施設への出店にご関心のある方は、まずはこの説明会にご参加ください。
ときわスクエア 出店募集説明会 概要
日時:2026年 5月29日(金)15:00~(1~2時間程度)
会場:宇部市役所 市民交流棟 2階 会議室C・D・E
MAP:https://maps.app.goo.gl/Muv7iwpTWL8UzTpT6
申込:メールにて受付(参加者名・人数・連絡先をご記入ください)
Mail:shogyo@yasunari.co.jp
申込締切:2026年 5月22日(金)17:00まで
ときわスクエア 立地概要
所在地:山口県宇部市常盤町1丁目(旧井筒屋跡)
構成 :
①公共施設
・くつろぎ交流拠点
・子育て支援拠点
②民間施設(商業区画)
・にぎわい創出が期待できる機能(飲食、生活便利機能)
・中心市街地の活性化が図れる機能
開業予定:2027年6月頃(全面開業予定)

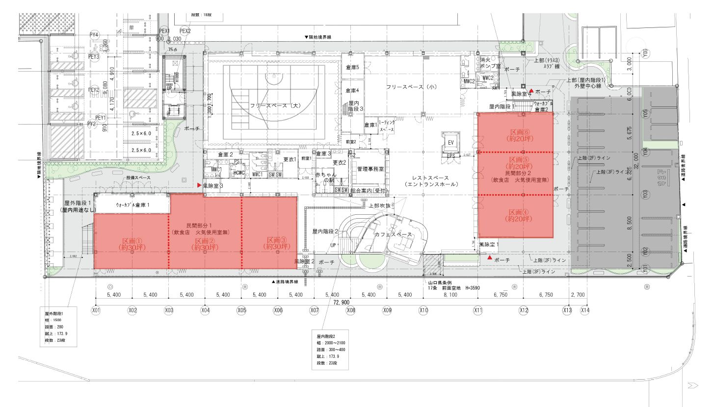
ときわスクエア フロアプラン

ときわスクエア 募集区画および面積
階数:1階
面積:66㎡(約20坪)~297㎡(約90坪)
営業時間: 9:00~21:00(予定) ※22:00に全館閉鎖
平面図:

家賃などの契約条件や施工区分などの資料は、5月29日(金)の出店募集説明会開催時に配布いたします。
本施設が、地域に新たな価値とにぎわいをもたらす場となるよう、志ある皆さまのご参加を心よりお待ちしております。